طراحی بهینهی پرههای راهنمای ورودی (IGV) برای کمپرسورهای سانتریفیوژ
به کمک پرههای راهنمای ورودی (IGV) در کمپرسورهای گریز از مرکز (سانتریفیوژ) میتوان مقدار دبی جرمی عبوری از کمپرسور را بدون تغییر دور تغییر داد.
چکیده
در کمپرسورهای گریز از مرکز یا سانتریفیوژ (Centrifugal Compressor) با استفاده از پرههای راهنمای ورودی (Inlet Guide Vane) یا IGV میتوان مقدار دبی جرمی عبوری از کمپرسور را بدون تغییر سرعت دورانی آن تغییر داد. رقابت در میان سازندگان این نوع کمپرسورها برای دستیابی به راندمان بالاتر در دامنهای گسترده از پایداری جریان باعث شده است که طراحی و شیوهی نصب پرههای راهنمای ورودی از اهمیت بالایی برخوردار شود.

برای به کارگیری IGV در گستره ای با راندمان مناسب لازم است جریان عبوری از میان پرههای آن دارای پایداری آیرودینامیکی باشد. بدین منظور باید از پرههایی با پروفیل مناسب و از مجرایی با شکل مناسب استفاده شود.
برای دستیابی به عوامل فوق چندین نمونه IGV طراحی شد و با مقایسه این نمونهها در زوایای نصب (Setting Angle) مختلف، بهترین نمونه انتخاب گردید. در این مقاله، نتایج تحلیلهای آیرودینامیکی به دست آمده از این نمونه با استفاده از نرمافزار انسیس سیافایکس (ANSYS CFX) ارائه میشود.
مقدمه
به منظور کنترل دبی جریان، تغییر نقطه سرج (Surge) و بهبود کارایی کمپرسور در محدودهی شرایط عملکردی، از پرههای راهنمای ورودی استفاده میشود. [1-4].
نکاتی که در انتخاب یک IGV مناسب دارای اهمیت است عبارتاند از:
- داشتن کمترین افت فشار سکون در زوایای نصب مختلف
- به حداقل رساندن اغتشاشات جریان خروجی
- به حداقل رساندن اختلاف زاویه جریان خروجی با زاویه خروجی پره

به منظور برآورده کردن مورد اول، طراحی پرهی IGV به گونهای انجام میشود که در آن افت پروفیل، افت ثانویه، افت نشتی و افت برخورد را بتوان به کمترین مقدار رساند. از اینرو از پرههایی با پروفیلی مناسب، ضریب صلبیت (Solidity) مناسب، نسبت منظری (Aspect Ratio) مناسب و مجرایی با پروفیل مناسب استفاده میشود. به منظور برآورده کردن مورد دوم و سوم، فاصله دهانه خروجی IGV از لبه انتهایی پره باید به اندازهای باشد که دنبالههای ایجاد شده در پشت پره و اختلاف زاویه جریان خروجی با زاویه پره، در آن فاصله به حداقل برسد. زیاد بودن این فاصله، اغتشاش جریان در خروجی را کمتر کرده ولی از طرفی باعث بیشتر شدن اختلاف زاویه پره با زاویه جریان خروجی میشود و کم بودن این فاصله باعث اغتشاش بیشتر جریان در خروجی میشود. از اینرو نیاز به بهینه کردن این فاصله است.

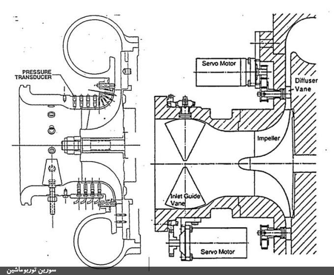
یک طراح، افزون بر چالشهایی که در رابطه با طراحی آیرودینامیکی پره IGV و فاصلهی مناسب آن با پروانه (Impeller) دارد، باید به شیوهی سوار شدن پرهها در مجرای ورودی و همچنین به شکل و پیکربندی مجرای ورودی توجه کند. ملاحظات دقیق در طراحی مجرای ورودی میتواند از دیدگاه آیرودینامیکی به همان اندازهی طراحی پرهها اهمیت داشته باشد. مدلهای قدیمیتر پرهی IGV شامل ردیف پرههای حلقوی نصب شده از طریق سوراخهای پیرامون محیط مجرای ورودی کمپرسور میباشد. با وجود سادگی و ارزان بودن نسبی این پیکربندی برای سازنده, کارایی آیرودینامیکی آن اساساً پایین است. با قرار دادن پرهها درون یک مقطع تقریباً کروی در مجرا میتوان بهبود اندکی در کارایی آیرودینامیکی داد. این پیکربندی دارای این برتری است که هنگام قرار گرفتن پره در زوایای نصب مختلف، لقی نوک پره (Tip Clearance) به حداقل میرسد.
شکل 1 نمونهای از این دو پیکربندی را نشان میدهد [5].
در رابطه با میدان جریان در پشت پره راهنمای ورودی یک کمپرسور گریز از مرکز, کاسنز بررسیهای تجربی انجام داده است [6]. هو و لاخمینارایانا با استفاده از شبیهسازی سهبعدی، جریان پایا و غیر پایا را در یک مرحله کمپرسور مدلسازی کردهاند و تاثیر دنبالههای ایجاد شده در خروجی IGV را بر روی پروانه کمپرسور بررسی کردهاند [7]. میشائیل تاثیر پرههای راهنمای ورودی را بر روی میدان جریان و عملکرد کمپرسور گریز از مرکز با استفاده از مدلسازی سهبعدی انجام داده است [8]. بوهل و همکاران تاثیر پره پشت سرهم را بر روی میدان جریان درون IGV با استفاده از شبیهسازی عددی مورد بررسی قرار داده است [9]. محسنی و همکاران با استفاده از مدلسازی سهبعدی، افت فشار و میدان جریان را بر روی چندین نوع پروفیل پره IGV بررسی کردهاند و تاثیر جریان خروجی از IGV را در ورودی پروانه کمپرسور تحلیل کردهاند [10].
در این مقاله تحلیل آیرودینامیکی یک نمونهی بهینهشده از IGV برای کمپرسور گریز از مرکز در زوایای نصب مختلف با استفاده از نرمافزار انسیس سیافایکس انجام گرفته و نتایج آن ارائه میشود.
مشخصات کمپرسور گریز از مرکز مورد بررسی
کمپرسور مورد بررسی در این پژوهش از نوع کمپرسور گریز از مرکز با نسبت فشار 1.9 و دبی جریان حجمی 9000 متر مکعب بر ساعت میباشد.
دادههای کمپرسور گریز از مرکز (تقریبی):
- دبی ورودی: 9000 متر مکعب بر ساعت
- هد آدیاباتیک:70000 ژول
- راندمان آدیاباتیک: 84 درصد
- توان گاز: 245 کیلووات
- نسبت فشار: 1.9
- سرعت دورانی: 25000 دور بر دقیقه
- دمای کل خروجی: 400 کلوین
مشخصات پره راهنمای ورودی طراحی شده
شکل 2 و 3 نمایی از پره و مجرای IGV طراحی شده را نشان میدهند. در این پروژه از مجرای کروی به منظور کاهش فاصله نوک پره با جداره مجرا استفاده میشود. در شکل 4 نمایی از نصب پرهها درون مجرا مشاهده میشود.
مشخصات هندسی IGV در زیر ارائه شده است.
مشخصات هندسی IGV
- تعداد پرهها: 9
- زاویه ورودی پره در زاویه نصب صفر درجه: 10
- زاویه خروجی پره در زاویه نصب صفر درجه: 0
- ضریب صلبیت (C/S): 1
- نسبت قطر دهانه ورودی به خروجی مسیر (Di/Do): 25/1
- نسبت وتر در نوک به وتر در پایه پره (Ctip/Chub): 4/6
- نسبت وتر در نوک به ارتفاع پره (Ctip/H): 8/0
- نسبت طول مسیر به ارتفاع پره (L/H): 8/2
تحلیل آیرودینامیکی پره راهنمای ورودی
به منظور بررسی افت فشار سکون، میدان جریان و اغتشاشات جریان در خروجیIGV، تحلیل آیرودینامیکی با استفاده از نرمافزار انسیس سیافایکس در زوایای نصب 20- درجه، 0 درجه، 20 درجه، 40 درجه و 60 درجه انجام گرفته است. شکل 5 نمایی از شبکهبندی سهبعدی گذرگاه اطراف پرهها و درون مجرای IGV را نشان میدهد.
تعداد المانهای شبکه نشان داده شده در این شکل حدود 350000 المان است. هم در پیرامون پره و هم در نزدیکی دیوارههای مجرا از شبکهبندی ریزتر لایه مرزی استفاده میگردد. شکل 6 مرزهای تعریف شده در نرمافزار انسیس سیافایکس را نشان میدهد.
شرایط مرزی اعمال شده عبارتند از:
- فشار سکون و دمای سکون در ورودی
- دبی جرمی در خروجی
- شرط مرزی متناوب در دیوارههای کناری گذرگاه
- شرط مرزی دیواره برای پره و دیواره مجرا
انوع حل پایا در نظر گرفته میشود. میدان جریان درون IGV با استفاده از مدل سهبعدی و به روش حجم محدود با میانگینگیری معادلات ناویر استوکس انجام میگیرد. برای معادلات کوپل شدهی سرعت و فشار از روش سیمپل-سی (Simple-C) استفاده میشود. تنشهای رینولدز در معادلات انتقال با استفاده از مدل توربولانسی k-e حل میشوند.
نتایج
در شکل 9 نمودار ضریب افت فشار سکون در مقابل زاویه نصب مشاهده میشود. افت فشار سکون در زاویه نصب 10 درجه (زاویه برخورد صفر درجه) کمترین مقدار را به خود اختصاص میدهد. با افزایش زاویه نصب از 40 درجه به بعد، افزایش افت فشار سکون شیب زیادتری به خود میگیرد زیرا افت برخورد بیشتر میگردد.
ضریب افت فشار سکون به صورت معادله زیر بیان میشود:

شکل 10 نمودار میانگین زاویه جریان خروجی از IGV را در برابر زاویه نصب نشان میدهد. این نمودار اختلاف زاویه جریان خروجی با زاویه خروجی پره میباشد. کمترین اختلاف در این نمودار مربوط به زاویه نصب صفر درجه بوده که حدود 1 درجه است و بیشتین این اختلاف مربوط به زاویه نصب 60 درجه بوده که حدود 12 درجه میباشد.
شکلهای 11 و 12 به ترتیب، نمودار تغییرات ضریب افت فشار سکون و زاویه جریان در طول یک گام و در فواصل مختلف از مرکز پره IGV را نشان میدهد. این فواصل در شکل 8 تعریف شده و در ارتفاع ثابت (span=0.65) میباشد نتایج بدست آمده برای این دو نمودار در زاویه نصب 40 درجه میباشد. این دو نمودار نشان میدهند که با فاصله گرفتن از لبهی انتهایی پره، اغتشاشات جریان کمتر میشود.
شکلهای 13 و 14 به ترتیب نمودار تغییرات ضریب افت فشار سکون و زاویه جریان در طول یک گام و در ارتفاع¬های مختلف خروجی (تعریف شده در شکل 9) و در زاویه نصب 40 درجه را نشان میدهد. این دو نمودار نشان میدهد که با نزدیک شدن به سمت نوک پره, اغتشاشات جریان بیشتر شده و اختلاف زاویه جریان با زاویه پره بیشتر و افت فشار نیز بیشتر میشود.
شکل 15 کانتور فشار سکون در طول IGV را نشان میدهد. با فاصله گرفتن از لبه انتهایی پره، تغییرات فشار سکون کمتر شده و اغتشاشات جریان کمتر میشود و در خروجی IGV این اغتشاشات به کمترین مقدار خود میرسد.
شکل 16 کانتور فشار سکون در ارتفاعهای مختلف پره را نشان میدهد. مشاهده میشود که تغییرات فشار سکون و اغتشاشات جریان در حوالی نوک پره بیشتر از بخشهای دیگر میباشد و این به خاطر ایجاد جریانهای نشتی در نوک و گردابههای ایجاد شده بر اثر آن میباشد.
شکل 17 کانتور تغییرات سرعت را درون گذرگاه ردیف پره نشان میدهد. مشاهده میشود که در نوک پره به علت ایجاد جریان نشتی از سطح فشاری به سطح مکشی، گردابههایی ناشی از جریان نشتی نوک تشکیل میشود که در این پروژه با بهینه کردن پروفیل مجرا این جریان نشتی به کمترین مقدار خود رسید.
نتیجهگیری
همانگونه که از نمودارهای ارائه شده مشخص است، با استفاده از نتایج ارائه شده میتوان محل قرار گرفتن پرههای IGV از پروانه کمپرسور گریز از مرکز را تعیین کرد. فاصله مناسب پرههای IGV از پروانه باعث میشود گردابههای پشت این پرهها پیش از ورود به پروانه حذف شده و راندمان کمپرسور افت نکند. همچنین با استفاده از پروفیل بهینه برای پره طراحی شده افت فشار سکون و گردابههای تشکیل شده در پشت پره به حداقل رسید و با استفاده از پروفیل بهینه برای مجرای طراحی شده، جریانهای ناشی از نشتی نوک و گردابههای ناشی از جریانهای نشتی به حداقل رسید.
مراجع
[1] Bensor, W.A., “Compressor Operation with One or More Blade Rows Stalled”, pp. 341-364, NASA SP-36, 1965.
[2] Budinger, R. E., Kaufman, H. R., “Investigation of the Performance of a Turbojet Engine with Variable-Position Compressor Inlet Guide Vanes”, NACA RM-E54L23a, 1955.
[3] Dobson, W. F., Wallner, L. E., “Acceleration Characteristics of a Turbojet Engine with Variable-Position Inlet Guide Vanes”, NACA RM-E54I30, 1955.
[4] Wallner, L. E., Lubick, R. J., “Steady State and Surge Characteristics of a Compressor Equipped with Variable Inlet Guide Vanes Operating in a Turbojet Engine”, NACA RM-E54I28, 1955.
[5] Coppinger, M., “Aerodynamic Performance of an Industrial Centrifugal Compressor Variable Inlet Guide Vane System”, A Doctoral Thesis, Loughborough University, 1999.
[6] Kassens, I. and Rautenberg, M., “Flow measurements behind the inlet guide vane of a centrifugal compressor“, ASME Paper No. 98-GT-86, 1998.
[7] Ho, Y. H. and Lakshminarayana, B., "Computation of Three-Dimensional Steady and Unsteady Flow through a Compressor Stage," ASME Paper 96-GT-70, 1996.
[8] Michael M. Cui., "EFFECT OF SUCTION ELBOW AND INLET GUIDE VANES ON FLOW FIELD IN A CENTRIFUGAL COMPRESSOR STAGE" ASME TURBO EXPO, Amsterdam, Netherland, 2002.
[9] M. Boehle., M. Cagna, L. Itter., “COMPRESSIBLE FLOW IN INLET GUIDE VANES WITH MECHANICAL FLAPS”, ASME TURBO EXPO, Vienna, Austria, 2004.
[10] Mohseni, A., et al., “Novel IGV Designs for Centrifugal Compressors and Their Interaction with the Impeller”. Journal of Turbomachinery , 2012.
7 بهمن ماه 1404
آشنایی با انواع تست در کمپرسورهای سانتریفیوژ (گریز از مرکز)
7 بهمن ماه 1404
تست مکانیکی بدون بار (No Load Test) در کمپرسورها
7 بهمن ماه 1404
رویهی کلی تست مکانیکی و عملکردی کمپرسور سانتریفیوژ
23 دی ماه 1404
دمای یاتاقان بهعنوان شاخص سلامت عملیاتی در کمپرسورهای سانتریفیوژ (بر اساس نسخه پنجم API 670)
15 آذر ماه 1404
میکروتوربین و روشهای تست آن: بررسی اصول، چالشها و فناوریهای نوین
9 آذر ماه 1404
مروری بر تست جامع موتورهای جت / نقش فناوریهای پیشرفته اندازهگیری و دادهبرداری در آزمایش موتورهای هوایی
























