طراحی و ساخت اتاق تست فن بر اساس استانداردهای AMCA 210 و ISO 5801
طراحی و ساخت یک اتاق تست فن مطابق با استانداردهای AMCA 210 و ISO 5801 برای دستیابی به دادههای دقیق و قابلاطمینان در مورد عملکرد آیرودینامیکی فنها بسیار مهم است.
طراحی و ساخت یک اتاق تست فن (Fan Test Chamber) مطابق با استانداردهای AMCA 210 و ISO 5801 برای دستیابی به دادههای دقیق و قابل اطمینان در مورد عملکرد آیرودینامیکی فنها بسیار مهم است. این استانداردها روشهای یکسانی را برای آزمایش فنها در محیط آزمایشگاهی ارائه میدهند تا پارامترهایی مانند نرخ جریان هوا، میزان فشار، مصرف توان و بازدهی تعیین شوند.
نکات کلیدی در طراحی اتاق تست فن
1- پیکربندی اتاق تست:
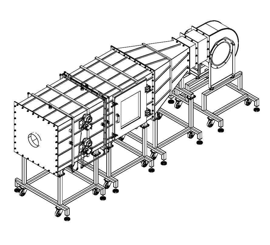
استانداردهای AMCA 210 و ISO 5801 چندین نوع چیدمان آزمایشی را مشخص کردهاند. یکی از پیکربندیهای متداول، چیدمان محفظه ورودی با نازلهای متعدد است که در شکل 15 استاندارد AMCA 210-16 نشان داده شده است. این چیدمان برای اندازهگیری دقیق جریان هوا و فشار طراحی شده و فن را بهگونهای هدایت میکند که هوای ورودی از طریق نازلهای کالیبرهشده به داخل محفظه تست هدایت شود.

2- مواد ساخت و ابعاد اتاق تست:
اتاق تست باید از ورقهای فولادی تقویتشده ساخته شود تا استحکام ساختاری را حفظ کرده و ارتعاشات را به حداقل برساند. یک طراحی استاندارد میتواند دارای مقطع مربعی به ابعاد 2500×2500 میلیمتر و طول تقریبی 12 متر باشد. این ابعاد برای آزمایش طیف وسیعی از فنها مناسب است.

3- قابلیتهای اندازهگیری:
اتاق تست باید بتواند جریانهای هوای بین 0.1 مترمکعب بر ثانیه تا 10 مترمکعب بر ثانیه و فشارهای بین -1000 پاسکال تا +1000 پاسکال را اندازهگیری کند. این دامنه وسیع، امکان آزمایش فنهای کوچک و بزرگ را در شرایط کاری مختلف فراهم میکند.
4- ابزاردقیق و سیستم دادهبرداری:
پیادهسازی یک سیستم جمعآوری و مدیریت دادهها (مانند LabVIEW) امکان نظارت و کنترل لحظهای را فراهم میکند. این سیستم باید قابلیتهای زیر را داشته باشد:
- تنظیم نازلهای اندازهگیری بر اساس استاندارد
- تعیین نقاط کاری از طریق کنترل دمپر و فن کمکی
- نمایش بلادرنگ (Real-Time) مقادیر فیزیکی و منحنیهای عملکردی
- تولید گزارشهای دقیق آزمایش
5- انعطافپذیری در آزمایش:
- اتاق تست باید قابلیت آزمایش انواع مختلف فنها و قطعات مرتبط را داشته باشد، از جمله:
- فنهای محوری با قطر حداکثر 1250 میلیمتر و توان تا 7.5 کیلووات
- فنهای سانتریفیوژ با مساحت ورودی تا 1.2 مترمربع و توان تا 7.5 کیلووات
- اجزای سیستمهای تهویه و مکش
- قطعات مربوط به سیستمهای خنککننده موتور و رادیاتورها
.jpeg)
ساخت و اجرای اتاق تست فن
برای ساخت اتاق تست فن مطابق با استانداردهای AMCA 210-16 و ISO 5801-2017، همکاری با شرکتهای متخصص در طراحی و ساخت تونل باد و اتاقهای تست فن توصیه میشود. شرکت سورین توربوماشین خدمات کاملی از مهندسی و طراحی تا ساخت و نصب اتاقهای تست را ارائه میدهند. تجربه این شرکت تضمین میکند که اتاق تست مطابق با استانداردهای بینالمللی ساخته شده و برای آزمایشهای مختلف سفارشیسازی میشود.
پروژه مرتبط: طراحی و ساخت تونل باد کسکید توربین و کمپرسور
جمعبندی
طراحی و ساخت یک اتاق تست فن مطابق با AMCA 210 و ISO 5801 برای ارزیابی دقیق عملکرد فنها ضروری است. موارد کلیدی در طراحی شامل انتخاب پیکربندی مناسب، استفاده از مواد مقاوم، ادغام سیستمهای پیشرفته جمعآوری داده، و طراحی انعطافپذیر برای انواع تستها است. اجرای صحیح این موارد، دقت اندازهگیری و قابلیت اطمینان نتایج آزمایش را تضمین میکند.
در این رابطه: کلیات طراحی اتاق تست فن مطابق استاندارد ایزو
29 دی ماه 1404
تست عملکرد کمپرسور سانتریفیوژ
15 آذر ماه 1404
طراحی و ساخت سکوی تست موتور توربوشفت
11 آذر ماه 1404
تست بیرینگهای تجهیزات دوار
9 آذر ماه 1404
طراحی و ساخت تست سل موتور توربوجت/توربوفن
22 اردیبهشت ماه 1404
تست عملکرد یا کارکرد سیستمهای جانبی توربین گاز، از جمله سیستم روغنکاری
17 اردیبهشت ماه 1404
تست جت فن مطابق استانداردهای AMCA 250 و ISO 13350
























